| 入居可能日 | 2026年6月20日より入居可 |
|---|
- 家賃
- 11.5 万円
| 共益費 | 3,000円 |
|---|---|
| 駐車場 | 敷地内無料 |
| 24時間サポート費 | 800円 |
| 礼金 | 1ヶ月 |
| 敷金 | 0ヶ月 |
| 償却 | 無し |
| 保証金 | 無し |
物件詳細情報
| 住所 | 群馬県 高崎市 下之城町561-4 |
|---|---|
| 築年数 | 築 -1年 |
| 専有面積 | 91.08㎡ |
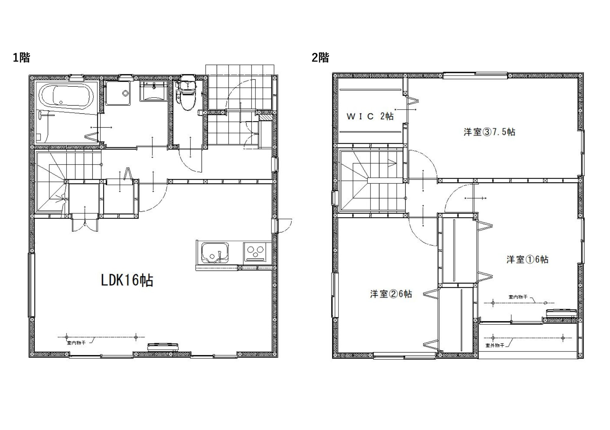
| 間取り | LDK16.0帖 洋室7.5帖 洋室6.0帖 洋室6.0帖 |
| 建物構造 | 木造 |
| 所在階 / 階数 | 2階 / 2階建て |
| 保証会社 | 加入要 |
| 住宅保険 | 要 |
| その他 | 個人:定期借家契約3年 再契約時礼金1ヶ月 法人:普通借家契約2年 更新料1ヶ月 町内会費個別支払い 退去時クリーニング費用7万円税別 |
初期費用概算(詳細はお問合せください)
- 初期費用目安
-
473,340
円
| 家賃 | 115,000円 |
|---|---|
| 共益費 | 3,000円 |
| 駐車場 | 0円 |
| 24時間サポート費 | 800円 |
| 礼金 | 115,000円 |
| 敷金 | 0円 |
| 日割り家賃※ひと月を30日で計算 ※共益費と駐車場代の日割りを含む |
日分
円
|
| 仲介手数料 | 126,500円 |
| 保証会社費用 | 95,040円 |
| 家財保険 | 18,000円 |
| 鍵交換費 | 0円 |
| 町内会費 | 0円 |
| その他費用 | 0円 |
- POINT
-
3096㎡の敷地に14棟が並ぶ【サクラヴィレッジ】が2026年5月に完成予定!
『カーポート付の戸建』、『バイクガレージ付の戸建』、『ペットと暮らせる平屋』など
あなたのライフスタイルに合った1部屋をお選びください!
≪全戸共通設備≫
都市ガス、ガスコンロ付、追焚機能付、ウォシュレット、洗髪式洗面化粧台、エアコン2台、
無料インターネット(J:COM)、宅配ボックス、BS・CSアンテナ、EV電源、外水栓
≪A・B・C棟≫
2階建3LDK(82.80㎡)バイクガレージ付
≪D・E棟≫
2階建3LDK(82.80㎡)
≪F・G・H棟≫
2階建3LDK(94.54㎡)カーポート付
≪I・J・K棟≫
2階建3LDK(91.08㎡)
≪L・M・N棟≫
1階建2LDK(62.10㎡)小型犬2頭まで飼育可
こだわり・設備
新築
築5年以内
駅徒歩5分以内
鉄筋コンクリート造
デザイナーズ
コンセプトアパート
一戸建て賃貸
リノベーション物件
最上階
エレベーター
駐車場2台無料
電動ガレージ
カーポート
駐輪場
バイク置き場
南向き
角部屋
専用庭
オートロック
防犯カメラ
セキュリティー加入
LDK12帖以上
土間
システムキッチン
アイランドキッチン
ガスコンロ対応
IHクッキングヒーター
ガスコンロ付
都市ガス
プロパンガス
バス・トイレ別
追炊機能付きバス
シャンプードレッサー
バルコニー
ウッドデッキ
フローリング
フロアタイル
ウォークインクローゼット
シューズBOX
シューズWIC
納戸
専用物置
照明付
BS
CS
CATV
TVインターホン
インターネット無料
ペット相談
礼金・敷金不要
完全0物件
仲介手数料無料
フリーレント
カスタマイズ可
エアコン
家具付
事務所利用可
入居情報
A棟
空 室| 賃料 | 120,000円 |
|---|---|
| 共益費 | 3,000円 |
| 部屋タイプ | 3LDK |
B棟
空 室| 賃料 | 120,000円 |
|---|---|
| 共益費 | 3,000円 |
| 部屋タイプ | 3LDK |
C棟
空 室| 賃料 | 120,000円 |
|---|---|
| 共益費 | 3,000円 |
| 部屋タイプ | 3LDK |
D棟
空 室| 賃料 | 110,000円 |
|---|---|
| 共益費 | 3,000円 |
| 部屋タイプ | 3LDK |
E棟
空 室| 賃料 | 110,000円 |
|---|---|
| 共益費 | 3,000円 |
| 部屋タイプ | 3LDK |
F棟
空 室| 賃料 | 130,000円 |
|---|---|
| 共益費 | 3,000円 |
| 部屋タイプ | 3LDK |
G棟
空 室| 賃料 | 130,000円 |
|---|---|
| 共益費 | 3,000円 |
| 部屋タイプ | 3LDK |
H棟
満 室| 賃料 | ― |
|---|---|
| 共益費 | ― |
| 部屋タイプ | ― |
I棟
空 室| 賃料 | 115,000円 |
|---|---|
| 共益費 | 3,000円 |
| 部屋タイプ | 3LDK |
J棟
空 室| 賃料 | 115,000円 |
|---|---|
| 共益費 | 3,000円 |
| 部屋タイプ | 3LDK |
K棟
空 室| 賃料 | 115,000円 |
|---|---|
| 共益費 | 3,000円 |
| 部屋タイプ | 3LDK |
部屋タイプ
3LDK
アクセスマップ
パンフレットダウンロード
- 物件パンフレット
- ダウンロードはこちら
- 申し込みについて
-
お申し込みの際は、
■個人契約の方
●入居申込書(個人用)
●保証委託審査申し込み書兼個人情報取り扱い同意
●身分証明書(免許証・健康保険証・パスポート等)
■法人契約の方
●入居申込書(法人用)
●商業登記謄本
●実入居者の身分証明書(免許証・健康保険証・パスポート等)
上記3点を必要事項記入の上、データ添付の上メールもしくはFAXにて送付をお願い致します。
【FAX送付先】027-251-5842 【メール送付先】chintai@shibusawa-tb.co.jp
入居申込書類一式ダウンロード【個人用】
ダウンロードはこちら入居申込書類一式ダウンロード【法人用】
ダウンロードはこちら





























